Made in Ukraine разом з тернопільськими підприємцями та Міжнародний благодійний фонд “Українська сім’я” за сприянні міського голови Збаража Романа Полікровського розпочали працювати над будівництвом соціального житла для тимчасово переміщених осіб. Про це повідомила засновниця проекту Made in Ukraine Юлія Савостіна.

Проект для комплексу, що буде розташований у Збаражі біля озера, стильний і розроблений balbek bureau. Це сучасний проект RE:Ukraine, спроектований так, щоби люди, що вимушено лишили свої домівки, до моменту повернення додому жили в гідних умовах і мали все необхідне.

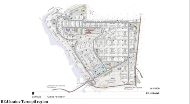
«Цей проект командою бюро вже посаджений на ділянку в Збаражі з урахуванням усіх географічних та місцевих особливостей», – зауважує Юлія Савостіна.

Фахівцями зроблено кадастрову зйомку 40 га із погодженням в інстанціях експлуатуючих наземні та підземні комунікації, всі геологічні вишукування, юридично відпрацьовано виділення землі, зроблено розбивку території, погоджено архітектурно-проєктувалині роботи.

– Переходимо до прокладки комунікацій, пошуку фінансових партнерів, партнерів з озеленення і оформлення території. І приймаємо всі інші ідеї, адже хочемо, аби життя 5500 людей там було спокійнішим і кращим. Я зроблю все, аби там з’явилися крафтові майстерні і підприємницький центр. Звичайно, я дуже хочу, щоб на гарній зеленій набережній бавилися діти і все було безпечно. Ми на це заслуговуємо! А ще я вірю, що все в наших руках. І маючи суто украінський хист причепурювати все навколо себе, ми зможемо показати, що тимчасове не повинно бути дискомфороним, – підсумувала Юлія Савостіна.
Джерело: Тижневик "Номер один"
Мітки: Made in Ukraine, Збараж, Роман Полікровський, Юлія Савостіна



