Оновлений фонтан «Сльози Гронського» вже кілька років тішить тернополян та гостей міста своїм виглядом. Чимало людей пам’ятають, в якому стані він був до реконструкції. А от проект капітального ремонту сходів біля фонтану, зовнішнього освітлення та впорядкування чаші фонтану виконували спеціалісти ТОВ «Експерт Проект Плюс» на замовлення Управління житлово-комунального господарства, благоустрою та екології Тернопільської міської ради.

Варто зауважити, що станом на 2018-й рік конструкція була далеко не в найкращому стані. Зокрема, сходи та більшість ліхтарів були зруйнованими. Серед причин – зношеність та акти вандалізму.
Відтак, проектні рішення фахівці приймали, враховуючи матеріали попередніх обмірів та промірів та завдання на проектування. Не менш важливо і те, що брали до уваги і кліматичні умови та місце розташування.
Щодо техніко-економічних показників, то за проектом:
– кількість декоративних ліхтарів – 4 шт;
– кількість ліхтарів фонтану –18 шт;
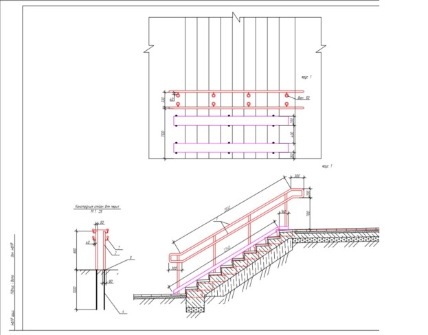
– довжина сходів по похилій – 32,89 м;
– висота перевищення між верхньою та нижньою відмітками – 10,2 м;
– кількість ярусів – 7;
– кількість сходинок – 62;
– матеріал облаштування декоративних ліхтарів – масивні плити з граніту;
– матеріал сходів, плит маршів та бокового огородження – природній камінь пісковик.
Проектом передбачили демонтаж блоків, облаштування підпірних стін (з пісковику), улаштування бетонного фундаменту, улаштування каркасу з металевого кутника, монтаж облаштування ліхтарів з масивних гранітних плит і колон з металевих труб та декоративних елементів, встановлення світильників. У планах було і встановлення силового кабелю до ліхтарів. Для надійного функціонування фонтану передбачили і заміну та монтаж нового силового щита, прокладання кабельних мереж в поліетиленових трубах, улаштування прожекторів LED, монтаж необхідного електрообладнання та заміну дренажних насосів.

Для зручності та безпеки пішоходів передбачили улаштування металевих перил з нержавіючої сталі.
Щодо сходів, то вони знаходилися в незадовільному стані – були наявні перекоси поздовжнього і поперечного профілю, руйнація підпірних стін, тріщини і перекоси блоків сходинок. Кам’яні плити з пісковика на майданчиках між маршами зруйновані. Основна причина руйнації – дефекти несучих конструкцій внаслідок їх природного зносу.
На доданих фото можете побачити, як виглядали проекти, та, власне, об’єкти до та після ремонту.



Джерело: Тижневик "Номер один"



