Фахівці «Експерт Проект Плюс» працюють над проєктно-кошторисною документацією для різних видів ремонтних робіт на автошляхах. Зокрема, наразі виготовляють проєкти на замовлення у різних областях: Рівненській, Чернівецькій та Тернопільській. Йдеться про капітальні та поточні середні ремонти.

Щодо капітального ремонту, то нещодавно спеціалісти «Експерт Проект Плюс» почали працювати над проєктною документацією на капітальний ремонт автомобільної дороги загального користування державного значення Т-26-06/Н-03/ Новоселиця-Герца-контрольно пропускний пункт «Дяківці», Чернівецької області.
Вишукувальні роботи, які необхідно виконати до початку проєктування, вже завершили. Зокрема, йдеться про топографічну зйомку, дослідження труб та підземних комунікацій.
Особливістю місцевості є те, що цей регіон практично щороку страждає від підтоплень. Відповідно, стан покриття дороги є геть не задовільним.
На цьому етапі роботи про проєктні рішення говорити рано, все ж фахівці кажуть, що однозначно запланують влаштування двох шарів асфальтобетону. Попередньо, запланують також ремонт і оновлення комунікацій.
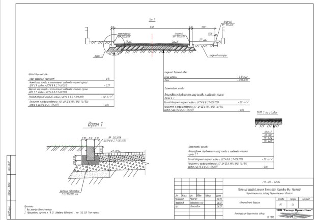
Щодо поточних середніх ремонтів, то фахівці «Експерт Проект Плюс» вже завершили роботу над проектно-кошторисною документацією:
- вул. Лисенка у м. Борщів, Тернопільської області;
- вул. Коренівка в с. Настасів Тернопільського району Тернопільської області;
- вул. Вишнева у м. Хоростків, Тернопільської області.

Основні проектні рішення у всіх трьох документаціях прийняті на основі інженерно-геодезичних вишукувань спеціалістів «Експерт Проект Плюс». Згідно з ДБН В.2.3-5:2018 «Вулиці та дороги населених пунктів», дані вищезгаданих ділянок являють собою житлові вулиці та відповідають розрахунковій швидкості – 40 км/год. Існуюче покриття доріг не задовольняє вимоги щодо міцності, має деформації і руйнування, що свідчить про втрату міцності конструкції (проломи, ямковість, просідання, вибоїни, напливи, колійність, а також сітка тріщин у поздовжньому та поперечному напрямках) та потребують ремонту. Ремонт же дозволить покращити експлуатаційні показники об’єкта, зменшить рівень шуму, безпеку руху.
Щодо Борщева, то в проект включені три ділянки загальною довжиною 499 метрів.
Проектом передбачено підсилення існуючого дорожнього одягу, влаштування бортового каменю, укріплення узбіччя щебенево-піщаною сумішшю та матеріалом від фрезування, ремонт дорожнього покриття на з’їздах в межах тротуару.

У Настасові загальна довжина проектування – 432 метри. Існуюче покриття дороги є білощебеневим.
Проектом передбачено ремонт дорожнього одягу, розширення (влаштування нової основи), ремонт покриття на примиканнях в межах радіусів заокруглення, забезпечення водовідведення, влаштування бортового каменю та встановлення пандуса.
У м. Хоростків, Тернопільської області загальна довжина проектування складає – 538 метрів.
Проектом передбачено ремонт дорожнього одягу, розширення (влаштування нової основи), ремонт покриття на примиканнях в межах радіусів заокруглення, забезпечення водовідведення демонтаж існуючого бортового каменя, влаштування бортового каменю.
Також спеціалісти «Експерт Проект Плюс» наразі працюють над проектно-кошторисною документацією на поточний середній ремонт автомобільної дороги загального користування державного значення Т-18-04 Корець – Славута – Антоніни у Рівненській області.

Інженерно-геодезичні вишукування вже завершили. Згідно із завданням на поточний середній ремонт та паспорта автомобільної дороги, ділянки відноситься до IV категорії, по якій здійснюються територіальні та місцеві перевезення. Існуюче покриття дороги не задовольняє вимоги щодо міцності, має деформації і руйнування, що свідчить про втрату міцності конструкції (проломи, ямковість, просідання, вибоїни, напливи, колійність, а також сітка тріщин у поздовжньому та поперечному напрямках), та потребує ремонту.
Попередньо, у проекті запланують підсилення існуючого дорожнього одягу, поновлення та поглиблення водовідвідних канав, укріплення узбіччя, прочистку та ремонт існуючих труб. Водовідведення буде забезпечено з допомогою існуючих та проектованих кюветів.

Джерело: Тижневик "Номер один"



